熱門資訊

設備工作原理
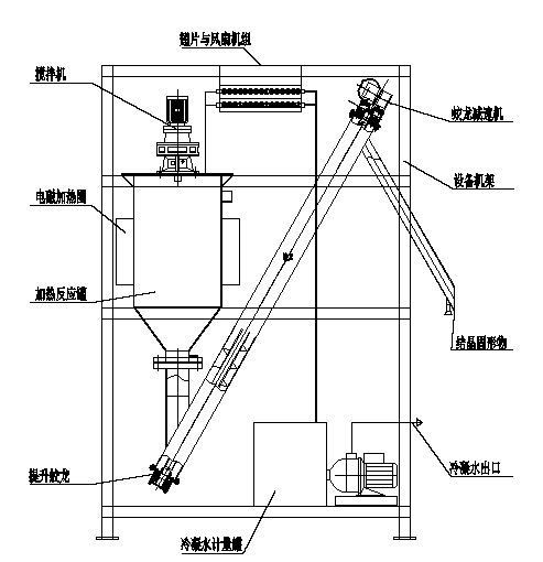
電磁結晶蒸發器主要由進料氣動泵、電磁加熱、蒸發反應罐、彈簧刮刀攪拌器、抽風機、冷卻翅片風扇、蛟龍出料裝置、監測控制儀表組成,最終實現全自動運行的電磁結晶蒸發器。
設備工藝流程動作如下:

設備工作動作
① 氣動泵進料到蒸發反應罐,并受蒸發反應罐內液位控制;
② 電磁加熱圈受蒸發反應罐內溫度控制,進行加熱供熱自動控制模式;
③ 蒸發罐內蒸發,電磁加熱面采用彈簧刮刀清理結垢,防止物料黏附影響換熱效率。
④ 水氣蒸發,二次蒸汽經抽風機引入冷卻翅片風扇,蒸汽冷凝成冷卻水。
⑤ 蒸發罐內物料濃縮,開始結晶,結晶物通過提升蛟龍提升到系統外后委外處理。
產品特點
序號 | 特點 |
1 | 系統一鍵啟動、一鍵停止、全自動運行 |
2 | 加熱壁刮板清理,清理物掉落至蒸發槽底部自動清理 |
3 | 電磁加熱快速,啟動時間短 |
4 | 適用于小水量蒸發 |
5 | 不需要蒸汽補充 |
產品規格
序號 | 處理能力 | 主體設備尺寸 | 裝機功率 | 壓縮空氣6kg/cm2 | 原液進口 | 產水口 | 不凝氣排口 | |
1 | 150L/D | L1.4*W1.2*H2.2 | 5.75kw | Ф10mm氣管 | DN20 | DN20 | DN40 | |
2 | 300L/D | L1.6*W1.4*H2.4 | 11kw | Ф10mm氣管 | DN25 | DN20 | DN50 |
注:該產品適用于節能蒸發器母液再處理,設備投資小,運行穩定,無需蒸汽,設備操作簡單,自動化程度高。